Помещение 5781. 8 м2. Арт. Торгово-офисный центр. 5 этажей общей
Цена продажи
250000000 руб.
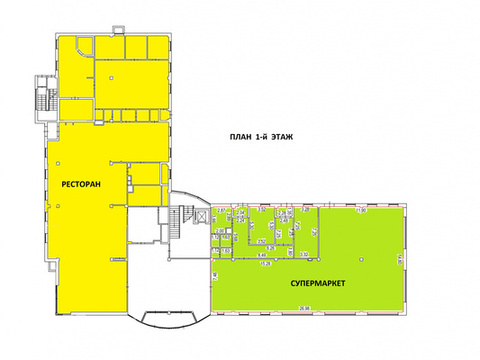
Помещение 5781.8 м2. Арт.Торгово-офисный центр. 5 этажей общей площадью 5 781,8 м. Год постройки 2013. Высота потолков 3,5 м. Пожарная и охранная сигнализация, парковка, приточно-вытяжная вентиляция. Выделенная электрическая мощность 80 квт. Лифт пассажирский. На первом этаже супермаркет и ресторан. Второй и цокольный этажи – без отделки, свободной планировки. Третий и четвертый этажи – офисы с качественной отделкой. Возможность покупки частями от 600 кв.м. Земельный участок 4 899 кв.м. в аренде до 2060 года, разрешенное использование: для объектов общественно-делового значения; для размещения торгово-офисного, спортивно-оздоровительного центра с баней и бассейном. Окупаемость объекта - 5,5 лет.
Назначение: торговый комплекс, торговый центр, торговая площадь, торговля, офис, боулинг, общепит, кафе/ресторан, антикафе, спортзал, медицинский центр, аптека, ресторан, мебель, ночной клуб, букмекерская контора, супермаркет, сауна, магазин, стоматология, банный комплекс, бытовые услуги, больничный комплекс, бильярдная, спортивный зал. Общая стоимость: 250000000 руб./месяц Этаж/этажность: 1/ Агентам: Не звонить |
1720436 06 Апреля 2019 просмотров 219 |
Добавить комментарий
Похожие объявления

































